ステージファースト巣鴨
※表示写真は、建物の外観写真・共用部分の写真を除き、同じ建物内のお部屋を一例として表示しています。写真に家具等の家財がある場合も、イメージ図となります。詳細は、お問い合わせのうえご確認下さい。
| 住所 | 豊島区巣鴨3-23-13 |
|---|---|
| 交通 | 都営三田線「巣鴨」駅 徒歩2分 JR山手線「巣鴨」駅 徒歩3分 |
| 築年数 | 2005年04月 |
参考賃料
79,000円~85,000円
記載されている参考賃料は、独自で調査した賃料です。
間取りタイプによって異なりますので、最新情報は直接お問い合わせ下さいませ。
※こちらのサイトは建物紹介サイトとなっております。
お部屋の空室や詳しいご内容に関しては、最新情報を確認の上ご説明させていただきます。
直接お問い合わせください。
特徴
設備
物件概要
| 物件種別 | 賃貸マンション |
|---|---|
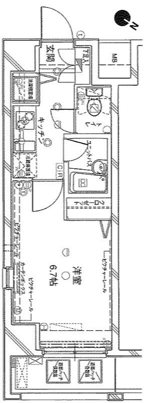
| 間取り/ 専有面積 |
1K / 21.86m²~ |
| 築年月 | 2005年04月 |
| 規模・構造 | 鉄筋コンクリート造 11階建て |
| 設備 | オートロック , 光ファイバー対応 , 宅配ボックス , 浴室換気乾燥機 , ウォシュレット , バストイレ別 |
| 特徴 | デザイナーズ , 分譲賃貸 , 保証人不要 , インターネット無料 |
| 取引態様 | 媒介 |
| 自社物件番号 | KK-0337 |
- ※当サイトは、建物に関するサイトとなっております。
条件等は、お部屋ごとに異なる場合がございますので、お部屋の事に関しては、必ず募集条件を直接ご確認ください - ※分譲賃貸マンションの場合、お部屋によって家賃・管理費・敷金・礼金など賃貸借契約に関する設定が様々です。各所有者様によって、設備・仕様・内装などが変更されている場合もございます。
- ※ペット飼育やSOHO利用の可否に関しては、建物の管理規約で可能になっていても、お部屋の所有者様によって禁止の場合もございますのでご注意下さい。
- 詳細はお電話、メール、LINEにてスタッフまでご相談下さい。












★保証人不要★インターネット無料★
★☆★建物の特徴★☆★
モニター付きオートロック/エレベーター/専用ゴミ置場/防犯カメラ/BS/CS/CATV/都市ガス/公共下水/給湯/インターネット無料/分譲/駐輪場/宅配ボックス
★☆★お部屋の特徴★☆★
システムキッチン/2口コンロ/バス・トイレ別/浴室換気乾燥暖房機/温水洗浄便座/洗面台/フローリング/エアコン/室内洗濯機置き場/シューズボックス/バルコニー/モニター付きインターホン/クローゼット
(※上記は部屋により異なる場合がございます)
★☆★近くのお店★☆★
ファミリーマート82m/セブンイレブン130m
★☆★近くの道路★☆★
白山通り
人気のシリーズ系デザイナーズマンション『ステージファースト上北沢』のご紹介です。
三田線『巣鴨駅』徒歩2分で利用可能。
駅近となっている為、大変好立地となっております。
周辺環境もコンビニや沢山の飲食店が徒歩圏にあるので大変便利です。
高級感漂う外観に加え、無料インターネットなど充実の設備。
また、オートロック・防犯カメラ・モニター付きインターホン・防犯センサー(一部住戸)など、女性でも安心の充実したセキュリティをご提供いたします。