リルシア綾瀬Ⅲ
※表示写真は、建物の外観写真・共用部分の写真を除き、同じ建物内のお部屋を一例として表示しています。写真に家具等の家財がある場合も、イメージ図となります。詳細は、お問い合わせのうえご確認下さい。
| 住所 | 足立区綾瀬3-18-1 |
|---|---|
| 交通 | 東京メトロ千代田線「綾瀬」駅 徒歩5分 JR常磐線「綾瀬」駅 徒歩5分 |
| 築年数 | 2025年04月 |
参考賃料
169,000円~172,000円
記載されている参考賃料は、独自で調査した賃料です。
間取りタイプによって異なりますので、最新情報は直接お問い合わせ下さいませ。
※こちらのサイトは建物紹介サイトとなっております。
お部屋の空室や詳しいご内容に関しては、最新情報を確認の上ご説明させていただきます。
直接お問い合わせください。
特徴
設備
物件概要
| 物件種別 | 賃貸マンション |
|---|---|
| 間取り/ 専有面積 |
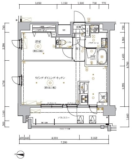
1LDK / 48.44m²~ |
| 築年月 | 2025年04月 |
| 規模・構造 | 鉄筋コンクリート造 13階建て |
| 設備 | オートロック , 光ファイバー対応 , 宅配ボックス , 浴室換気乾燥機 , ウォシュレット , 玄関ダブルロック , ディンプルキー , 独立洗面台 , 脱衣室 , バストイレ別 |
| 特徴 | デザイナーズ , ペット相談可 , 二人入居可 , 分譲賃貸 , 保証人不要 , インターネット無料 , 1DK以上 , 築浅 |
| 取引態様 | 媒介 |
| 自社物件番号 | C-6894 |
- ※当サイトは、建物に関するサイトとなっております。
条件等は、お部屋ごとに異なる場合がございますので、お部屋の事に関しては、必ず募集条件を直接ご確認ください - ※分譲賃貸マンションの場合、お部屋によって家賃・管理費・敷金・礼金など賃貸借契約に関する設定が様々です。各所有者様によって、設備・仕様・内装などが変更されている場合もございます。
- ※ペット飼育やSOHO利用の可否に関しては、建物の管理規約で可能になっていても、お部屋の所有者様によって禁止の場合もございますのでご注意下さい。
- 詳細はお電話、メール、LINEにてスタッフまでご相談下さい。









★ペット可★浴室乾燥★
★☆★建物の特徴★☆★
モニター付きオートロック/宅配ボックス/エレベーター/防犯カメラ/ディンプルキー/ゴミ置き場/CS/BS
★☆★お部屋の特徴★☆★
システムキッチン/バス・トイレ別/独立洗面台/脱衣所/洗濯機室内/浴室乾燥機/温水洗浄便座/クローゼット/シューズボックス/照明/フローリング/バルコニー/エアコン/モニター付きインターホン/24時間換気システム
(※上記は部屋により異なる場合がございます)
★☆★近くのお店★☆★
ベルクス170m/セブンイレブン220m
★☆★近くの道路★☆★
綾瀬川通り
東京都足立区綾瀬3丁目、東京メトロ千代田線「綾瀬」駅から徒歩わずか5分という好立地に佇む分譲マンション「RELUXIA綾瀬Ⅲ」。通勤や通学に便利なアクセスを確保しながらも、落ち着いた住環境が魅力のエリアです。
エントランスには安心のTVモニター付きオートロックシステムを完備しており、防犯面にも配慮。お仕事や外出が多い方に嬉しい24時間対応の宅配ボックスも設置されているため、不在時の荷物の受け取りもスムーズです。
室内には、バス・トイレが別で設計されており、浴室乾燥機や独立洗面台、温水洗浄便座など、暮らしを快適にする設備が充実。細部まで配慮された設計で、日々の生活を豊かにサポートします。
また、ペットと暮らしたい方にも安心のペット可物件となっており、さまざまなライフスタイルに対応可能です。ナイトワーク(キャバクラ、ホスト、その他夜職)に従事されている方の入居審査についても、柔軟に対応しておりますので、ご安心ください。
初めての一人暮らしにも、落ち着いた住まいをお探しの方にもおすすめの物件です。ぜひ一度、お気軽にお問い合わせください。