リヴシティ成増ミュジオ
※表示写真は、建物の外観写真・共用部分の写真を除き、同じ建物内のお部屋を一例として表示しています。写真に家具等の家財がある場合も、イメージ図となります。詳細は、お問い合わせのうえご確認下さい。
| 住所 | 練馬区旭町3-11-17 |
|---|---|
| 交通 | 東京メトロ有楽町線「地下鉄成増」駅 徒歩9分 東武東上線「成増」駅 徒歩12分 |
| 築年数 | 2019年11月 |
参考賃料
145,000円~162,000円
記載されている参考賃料は、独自で調査した賃料です。
間取りタイプによって異なりますので、最新情報は直接お問い合わせ下さいませ。
※こちらのサイトは建物紹介サイトとなっております。
お部屋の空室や詳しいご内容に関しては、最新情報を確認の上ご説明させていただきます。
直接お問い合わせください。
特徴
設備
物件概要
| 物件種別 | 賃貸マンション |
|---|---|
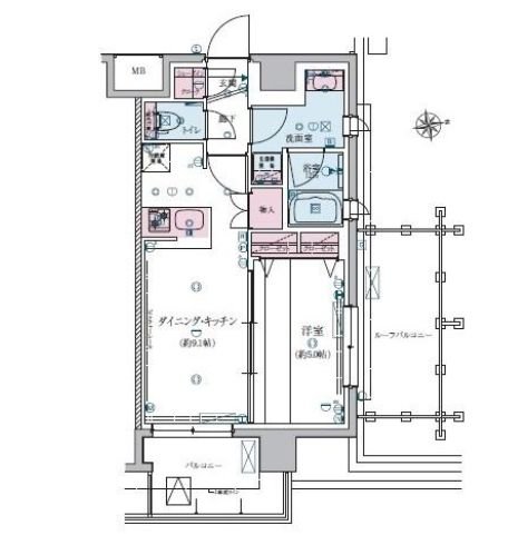
| 間取り/ 専有面積 |
1LDK / 37.03m²~ |
| 築年月 | 2019年11月 |
| 規模・構造 | 鉄筋コンクリート造 6階建て |
| 設備 | オートロック , 宅配ボックス , 浴室換気乾燥機 , ウォシュレット , 独立洗面台 , バストイレ別 |
| 特徴 | ペット相談可 , 二人入居可 , 分譲賃貸 , 保証人不要 , 1DK以上 |
| 取引態様 | 媒介 |
| 自社物件番号 | I-0533 |
- ※当サイトは、建物に関するサイトとなっております。
条件等は、お部屋ごとに異なる場合がございますので、お部屋の事に関しては、必ず募集条件を直接ご確認ください - ※分譲賃貸マンションの場合、お部屋によって家賃・管理費・敷金・礼金など賃貸借契約に関する設定が様々です。各所有者様によって、設備・仕様・内装などが変更されている場合もございます。
- ※ペット飼育やSOHO利用の可否に関しては、建物の管理規約で可能になっていても、お部屋の所有者様によって禁止の場合もございますのでご注意下さい。
- 詳細はお電話、メール、LINEにてスタッフまでご相談下さい。
















