ズーム渋谷神山町
※表示写真は、建物の外観写真・共用部分の写真を除き、同じ建物内のお部屋を一例として表示しています。写真に家具等の家財がある場合も、イメージ図となります。詳細は、お問い合わせのうえご確認下さい。
| 住所 | 渋谷区神山町17-1 |
|---|---|
| 交通 | 東京メトロ千代田線「代々木公園」駅 徒歩8分 小田急小田原線「代々木八幡」駅 徒歩9分 |
| 築年数 | 2018年12月 |
参考賃料
158,000円~210,000円
記載されている参考賃料は、独自で調査した賃料です。
間取りタイプによって異なりますので、最新情報は直接お問い合わせ下さいませ。
※こちらのサイトは建物紹介サイトとなっております。
お部屋の空室や詳しいご内容に関しては、最新情報を確認の上ご説明させていただきます。
直接お問い合わせください。
特徴
設備
物件概要
| 物件種別 | 賃貸マンション |
|---|---|
| 間取り/ 専有面積 |
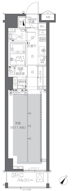
1K / 28.36m²~ |
| 築年月 | 2018年12月 |
| 規模・構造 | 鉄筋コンクリート造 9階建て |
| 設備 | オートロック , 光ファイバー対応 , 宅配ボックス , 追焚き機能付 , 浴室換気乾燥機 , ウォシュレット , ディンプルキー , 独立洗面台 , 脱衣室 , バストイレ別 |
| 特徴 | デザイナーズ , ペット相談可 , 二人入居可 , 分譲賃貸 , 保証人不要 , インターネット無料 , レジデンス |
| 取引態様 | 媒介 |
| 自社物件番号 | C-8791 |
- ※当サイトは、建物に関するサイトとなっております。
条件等は、お部屋ごとに異なる場合がございますので、お部屋の事に関しては、必ず募集条件を直接ご確認ください - ※分譲賃貸マンションの場合、お部屋によって家賃・管理費・敷金・礼金など賃貸借契約に関する設定が様々です。各所有者様によって、設備・仕様・内装などが変更されている場合もございます。
- ※ペット飼育やSOHO利用の可否に関しては、建物の管理規約で可能になっていても、お部屋の所有者様によって禁止の場合もございますのでご注意下さい。
- 詳細はお電話、メール、LINEにてスタッフまでご相談下さい。


























★ペット可★浴室乾燥★
★☆★建物の特徴★☆★
モニター付きオートロック/宅配ボックス/エレベーター/防犯カメラ/ディンプルキー/ゴミ置き場/CS/BS/CATV/駐輪場/バイク置き場
★☆★お部屋の特徴★☆★
システムキッチン/バス・トイレ別/独立洗面台/脱衣所/洗濯機室内/浴室乾燥機/温水洗浄便座/追炊き機能/床暖房/クローゼット/シューズボックス/照明/フローリング/バルコニー/エアコン/モニター付きインターホン/24時間換気システム/ペット可
(※上記は部屋により異なる場合がございます)
★☆★近くのお店★☆★
ファミリーマート130m/セブンイレブン180m
★☆★近くの道路★☆★
井の頭通り
渋谷区神山町エリアに建つ賃貸マンション「ズーム渋谷神山町」のご紹介です。
2018年12月築、地上9階建ての鉄筋コンクリート造マンションです。
オートロックやモニター付インターホンがあるので防犯面も安心です。
住戸には、雨天時のお洗濯に便利な浴室乾燥機や収納、エアコン、システムキッチン、独立洗面台など生活に便利な設備が完備されています。
共用部には宅配ボックスも完備で不在時でも24時間お荷物のお受け取りが可能なので、お忙しい方にもおすすめです。
ペット飼育可能なので愛犬や愛猫と一緒に暮らせるのも嬉しいポイントです。