メインステージ西蒲田Ⅱ
※表示写真は、建物の外観写真・共用部分の写真を除き、同じ建物内のお部屋を一例として表示しています。写真に家具等の家財がある場合も、イメージ図となります。詳細は、お問い合わせのうえご確認下さい。
| 住所 | 大田区西蒲田7-54-7 |
|---|---|
| 交通 | JR京浜東北線「蒲田」駅 徒歩7分 東急池上線「蒲田」駅 徒歩6分 |
| 築年数 | 2011年01月 |
参考賃料
83,000円~107,500円
記載されている参考賃料は、独自で調査した賃料です。
間取りタイプによって異なりますので、最新情報は直接お問い合わせ下さいませ。
※こちらのサイトは建物紹介サイトとなっております。
お部屋の空室や詳しいご内容に関しては、最新情報を確認の上ご説明させていただきます。
直接お問い合わせください。
特徴
設備
物件概要
| 物件種別 | 賃貸マンション |
|---|---|
| 間取り/ 専有面積 |
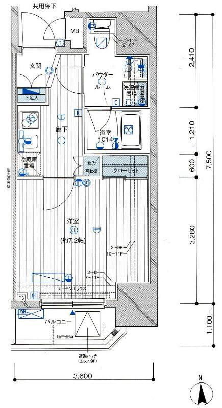
1K / 25.74m²~ |
| 築年月 | 2011年01月 |
| 規模・構造 | 鉄筋コンクリート造 11階建て |
| 設備 | オートロック , 光ファイバー対応 , 宅配ボックス , 浴室換気乾燥機 , ウォシュレット , シャンプードレッサー , 玄関ダブルロック , ディンプルキー , 独立洗面台 , 脱衣室 , バストイレ別 |
| 特徴 | 敷金・礼金0 , ペット相談可 , 分譲賃貸 , 保証人不要 , レジデンス |
| 取引態様 | 媒介 |
| 自社物件番号 | MA-896 |
- ※当サイトは、建物に関するサイトとなっております。
条件等は、お部屋ごとに異なる場合がございますので、お部屋の事に関しては、必ず募集条件を直接ご確認ください - ※分譲賃貸マンションの場合、お部屋によって家賃・管理費・敷金・礼金など賃貸借契約に関する設定が様々です。各所有者様によって、設備・仕様・内装などが変更されている場合もございます。
- ※ペット飼育やSOHO利用の可否に関しては、建物の管理規約で可能になっていても、お部屋の所有者様によって禁止の場合もございますのでご注意下さい。
- 詳細はお電話、メール、LINEにてスタッフまでご相談下さい。























★ペット可★浴室乾燥★
★☆★建物の特徴★☆★
都市ガス/モニター付きオートロック/宅配ボックス/エレベーター/風除室/防犯カメラ/ディンプルキー/敷地内ゴミ置き場/外壁タイル張り/BS/CS/CATV/インターネット対応/駐輪場/分譲
★☆★お部屋の特徴★☆★
システムキッチン/2口ガスコンロ/バス・トイレ別/独立洗面化粧台/脱衣所/洗濯機室内/浴室乾燥機/温水洗浄便座/クローゼット/シューズボックス/照明/フローリング/バルコニー/エアコン/モニター付きインターホン/24時間換気システム/ペット可
(※上記は部屋により異なる場合がございます)
★☆★近くのお店★☆★
デイリーヤマザキ110m/ライフ130m
★☆★近くの道路★☆★
環八通り
京浜東北線「鎌田駅」から徒歩7分の場所に位置する2011年1月築の分譲マンション「メインステージ西蒲田Ⅱ」のご紹介です。
オートロック機能に加えて、ディンプルキーを採用しているのでセキュリティも万全!女性のお客様も安心してお住み頂けます。
また、宅配ボックスもありますので、普段お忙しい方でも荷物を受け取る事が出来ます。
近所には5分圏内にコンビニやスーパーマーケットもあり、その他施設も充実しているので快適に生活が出来ます。