デュアレス愛宕虎ノ門
※表示写真は、建物の外観写真・共用部分の写真を除き、同じ建物内のお部屋を一例として表示しています。写真に家具等の家財がある場合も、イメージ図となります。詳細は、お問い合わせのうえご確認下さい。
| 住所 | 港区虎ノ門3-15-6 |
|---|---|
| 交通 | 東京メトロ日比谷線「神谷町」駅 徒歩4分 都営三田線「御成門」駅 徒歩8分 東京メトロ銀座線「虎ノ門」駅 徒歩10分 |
| 築年数 | 2013年09月 |
参考賃料
130,000円~147,000円
記載されている参考賃料は、独自で調査した賃料です。
間取りタイプによって異なりますので、最新情報は直接お問い合わせ下さいませ。
※こちらのサイトは建物紹介サイトとなっております。
お部屋の空室や詳しいご内容に関しては、最新情報を確認の上ご説明させていただきます。
直接お問い合わせください。
特徴
設備
物件概要
| 物件種別 | 賃貸マンション |
|---|---|
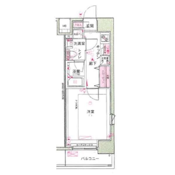
| 間取り/ 専有面積 |
1K / 25.62m²~ |
| 築年月 | 2013年09月 |
| 規模・構造 | 鉄筋コンクリート造 5階建て |
| 設備 | オートロック , 光ファイバー対応 , 宅配ボックス , 浴室換気乾燥機 , ウォシュレット , 玄関ダブルロック , ディンプルキー , 独立洗面台 , 脱衣室 , バストイレ別 |
| 特徴 | デザイナーズ , ペット相談可 , 分譲賃貸 , 保証人不要 , レジデンス |
| 取引態様 | 媒介 |
| 自社物件番号 | MA-897 |
- ※当サイトは、建物に関するサイトとなっております。
条件等は、お部屋ごとに異なる場合がございますので、お部屋の事に関しては、必ず募集条件を直接ご確認ください - ※分譲賃貸マンションの場合、お部屋によって家賃・管理費・敷金・礼金など賃貸借契約に関する設定が様々です。各所有者様によって、設備・仕様・内装などが変更されている場合もございます。
- ※ペット飼育やSOHO利用の可否に関しては、建物の管理規約で可能になっていても、お部屋の所有者様によって禁止の場合もございますのでご注意下さい。
- 詳細はお電話、メール、LINEにてスタッフまでご相談下さい。



























★オートロック★防犯カメラ★
★☆★建物の特徴★☆★
オートロック/エレベーター/防犯カメラ/BS/CS/光ファイバー/ディンプルキー/ダブルロック/宅配ボックス/外観タイル張り/デザイナーズ/バイク置き場/駐輪場
★☆★お部屋の特徴★☆★
システムキッチン/浴室換気乾燥機/独立洗面台/脱衣室/バストイレ別/グリル付き2口ガスコンロ/エアコン/温水洗浄便座/モニター付きインターホン/フローリング/室内洗濯機置場/ガス給湯/シューズボックス/ペット可
(※上記は部屋により異なる場合がございます)
★☆★近くのお店★☆★
ファミリーマート230m/セブンイレブン260m/スーパー350m
★☆★近くの道路★☆★
桜田通り
港区虎ノ門にあるペット可高級分譲マンション「DUARES愛宕虎ノ門」のご紹介♪
東京メトロ日比谷線「神谷町駅」、都営三田線「御成門駅」、東京メトロ銀座線「虎ノ門駅」と複数路線利用可能な好立地♪
銀座、六本木までもタクシー1500円圏内。
設備には嬉しい、独立洗面台・浴室乾燥・洗浄機付便座・システムキッチンなどの水回り。
沢山収納できるクローゼットからシューズBOX。
宅配BOXやカラーTVインターホンなど納得のいく設備となっています。
女性にも安心セキュリティ面に優れたマンション。
オートロック、防犯カメラも設置されており防犯性の高い造りとなっています。